昆明世纪圣诺医疗门诊部

以营造舒适的医疗环境,减轻患者的身体及心理压力为目标,深圳巧合医疗设计团队对昆明世纪圣诺医疗门诊的设计,以简约手法去塑造其间的生机和人情味。



门诊简介

昆明世纪圣诺医疗门诊是一家全科门诊,建筑面积2600平米,开设了妇科、儿科、 内外科、眼科、检验科、中医等科室。


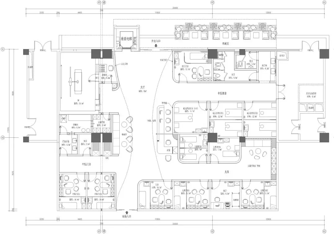
▲一层平面图


▲门头设计方案



设计方案


1、色彩的递进式应用


内部空间的色彩,有3个层面的递进式应用。


第一层色彩是白色和灰色。这两个基本款色彩生性沉稳,大面积地搭配运用也不会觉得压抑,强调了医疗空间的“安全感”属性。


除了安全感,还要表现空间的舒适性。因此,第二层色彩运用了原木色和静谧蓝,形成空间层次的对比。患者排队候诊的焦躁,医护人员高强度工作的疲累,在这种宁静的氛围中可以得到有效地纾缓。


还可以在沙发椅、花艺摆件、挂画、窗帘等第三层面,运用大胆的色彩创造惊喜。就像诊室内或等候区的一把湖水蓝沙发椅,散发出一种舒适的气息,令人忍不住想坐下来好好休息一下。


▲一层接待大厅设计方案


▲标准门诊设计方案


▲妇科门诊等候设计方案


▲二层咨询室设计方案




2、线条描摹的灵动空间


元阳梯田是云南知名的自然人文景观。其蜿蜒起伏的曲线层层叠叠,激荡出无穷的想象空间和生机。

▲元阳梯田(图片来源于网络)



再来看下这个项目的大厅及地面造型设计,不难发现梯田曲线的借鉴运用。在线性照明的映衬下,上下两个层面的曲线互相呼应,柔软而富有活力。


▲大厅地面运用了水磨石,具有良好的抗压、耐磨损性能



空间流线的设计,还考虑到了医疗安全和用户隐私。


比如,二层大厅以接待台为中轴,两侧分设收费、取药窗口,并设计了A、B两个通道,促进效率和安全。


服务窗口、等候、儿童活动各个功能区域的设计,统一采用了内凹式的空间设计,打破四平八稳的固有印象,尽可能创造更多的公共活动空间。

▲二层大厅设计方案


▲检验过道设计方案



3、环境图形创造的治愈空间



相较于文字,环境图形更加直观和浅显。一个意境悠远的环境图形,就能使空间增色不少。


▲中医门诊设计方案


儿童区域的设计运用了比较多的环境图形。丰富的色彩,童趣的图形。艺术化的空间设计,为孩子们创造一个不受拘束的乐园。

▲儿童输液设计方案


▲儿科等候设计方案


现场实景是设计实力的“验金石”。本项目正在施工阶段,设计团队紧跟施工进度,努力达成设计方案的高度还原。

▲外观

▲二层大厅

▲儿童输液区